物件情報
情報提供日:
豊中市永楽荘2丁目
6100万円
阪急箕面線「桜井」歩17分
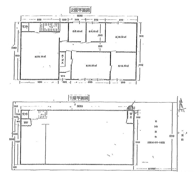
■住宅付き店舗
■6DK+フリースペース
■軽量鉄骨造2階建
■駐車3台可
■府道43号線(豊中亀岡線)に面しております
■南東向き間口で陽当り良好です
■土地面積約63坪
物件詳細
- 所在地
- 大阪府豊中市永楽荘2丁目
- 間取り
- 6DK+フリースペース
- 完成時期(築年月)
- 1983年9月
- 構造
- 軽量鉄骨造2階建
- 土地面積
- 208.52㎡
- 建築面積
- 238.48㎡
- 駐車場
- 有※3台可
- 地目
- 宅地
- 用途地域
- 2種中高
- 道路幅員
- 南東8幅(接道幅9m)
- 私道負担
- 無
- 土地の権利形態
- 所有権
- 設備
- 電気、公営水道、本下水、都市ガス
- 引き渡し
- 即時
- 取引態様
- 仲介
- ・価格は物件の代金総額を表示しており、消費税が課税される場合は税込み価格です。(1000円未満は切り上げ)
- ・写真に写っている、またはパース(絵)や間取り図に描かれている家具や車などは、特にコメントがない場合、販売価格に含まれません。
- ・敷地権利が定期借地権のものは価格に権利金を含みます。
- ・建築条件付き土地価格には、建物価格は含まれません。
- ・完成予想図はいずれも外構、植栽、外観等実際のものとは多少異なることがあります。
- ・モデルルーム・モデルハウス・展示場・ショールームの画像の場合、今回販売の物件と異なる場合があります。
- ・CG合成の画像の場合、実際とは多少異なる場合があります。
- ・物件特徴:販売戸数が複数の物件は、全ての住戸に該当しない項目もあります。
- ・完成後1年以上を経過した未入居物件が掲載される場合があります。ご了承ください。
- ・購入の前には物件内容や契約条件についてご自身で十分な確認をお願いいたします。
- ・建築条件土地の情報内に掲載されている建物プラン例は、土地購入者の設計プランの参考の一例であり、プラン採用の可否は任意です。
- ・土地(建築条件なし)で「建物プラン例」が表記されている場合、そのプラン例は特定の建築請負会社によるもので、他社で同様のものを同価格で建てられるとは限りません。また、当該建築請負会社を特定するものではありません。
- ・建築条件付き土地とは、その土地に建築する建物の建築請負契約が一定期間内に成立することを条件として売買される土地をいいます。期間内(概ね3か月)に設計協議を行い、希望を満たすプランが実現しない場合は土地売買契約は白紙となり、土地代金・手付金等は全て返却されます。
- ・課税対象物件の「価格」や「費用等」は、消費税込みの総額表示で統一しています。
- ・「本体価格」とは、課税対象物件において「消費税を除いた建物価格」と「土地価格」の合計額を指します。
- ・課税対象物件は総額表示のため、不動産広告の販売価格に本体価格は表示されません。
- ・不動産売買の媒介(仲介)・代理の際に不動産会社が受領できる報酬額には上限が定められています。
- ・売買物件の仲介手数料の法定上限額は「本体価格」を基準に算出します。
- ・取引にかかる費用:物件の契約手続き・決済・引き渡し時にかかる費用を表示しています。表示有無は不動産会社により異なるため、ご自身で十分な確認をお願いいたします。
- ・掲載の省エネ性能ラベル内の物件・住棟・号室名称は、最新のものに変更されている場合があります。